無料cad データ Uボルト エルボ ティー リップ溝形鋼 Cチャン 配管 鋼材 ボルト 等辺山形鋼 アングル チャンネル I形鋼 H形鋼 溝形鋼 軽量形鋼 Dxf Autocadデータ Dwg

304rts20 80x32 ステンレス製突合せ溶接式管継手 径違いチーズ Sus304 20s イノック Misumi Vona ミスミ

32a サイズ別寸法表 差込み溶接式管継手 配管継手寸法表のまとめ


Fkg T チーズ Fkg Zd継手 10k用 シール材付 リケン 適合管 Stpg Vs 呼び径 1 1 4b 32a 寸法d 52fmm Fkg T 通販モノタロウ 57454085
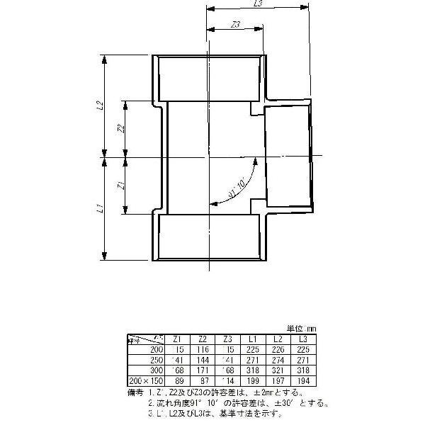
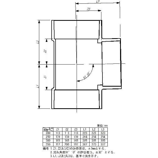
当日出荷 排水用 塩ビdv継手 vuチーズ 200 Vut200 現場屋さんヤフー店 通販 Yahoo ショッピング

異径 径違い チーズ突合せ溶接継手 Tr の規格 サイズ 寸法 配管用鋼製突合せ溶接式管継手 Jis B 2311 2312 Jis規格ポケットブック

ステンレス鋼製ねじ込み管継手径違いチーズ 吉年 Misumi Vona ミスミ
当日出荷 排水用 塩ビdv継手 dv チーズ 300 Dvt300 現場屋さんヤフー店 通販 Yahoo ショッピング
チーズ突合せ溶接継手 Ts の規格 サイズ 寸法 質量 配管用 鋼製突合せ溶接式管継手 Jis B 2311 2312 Jis規格ポケットブック

アルミ配管チーズ 同径t アルミ配管継手 アルミテック

Swt 高圧差込溶接形異径チーズ フジトク 炭素鋼 寸法d 41 2fmm 呼び径 40 32 A 通販モノタロウ 07036951
Tags:
Archive